【門戶標桿】深圳北商務總部門戶資產,高品質商務標桿
房屋戶型:1室 、2室 、3室 、
住宅類型:
區域:深圳市龍華區民塘路與白松三路交匯處
最新開盤:2019/9/21
立即咨詢
24小時咨詢熱線:13267179661
開盤時間:2019-09-21
交房時間:2021-11-30
總價區間:195.2萬-2244.8萬
樓盤地址:深圳市龍華區民塘路與白松三路交匯處
物業類型:寫字樓、公寓、商鋪
產權年限:40
開發商:深圳華僑城房地產有限公司
項目基本指標:
【開發商】深圳華僑城置業投資有限公司
【地址】龍華區民塘路與白松二路交匯處
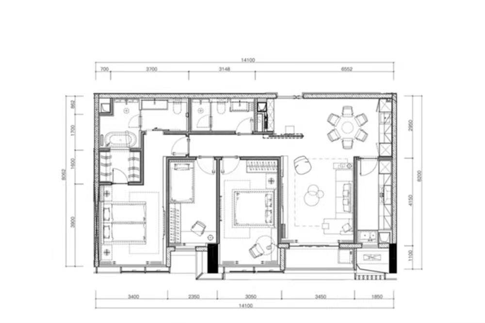
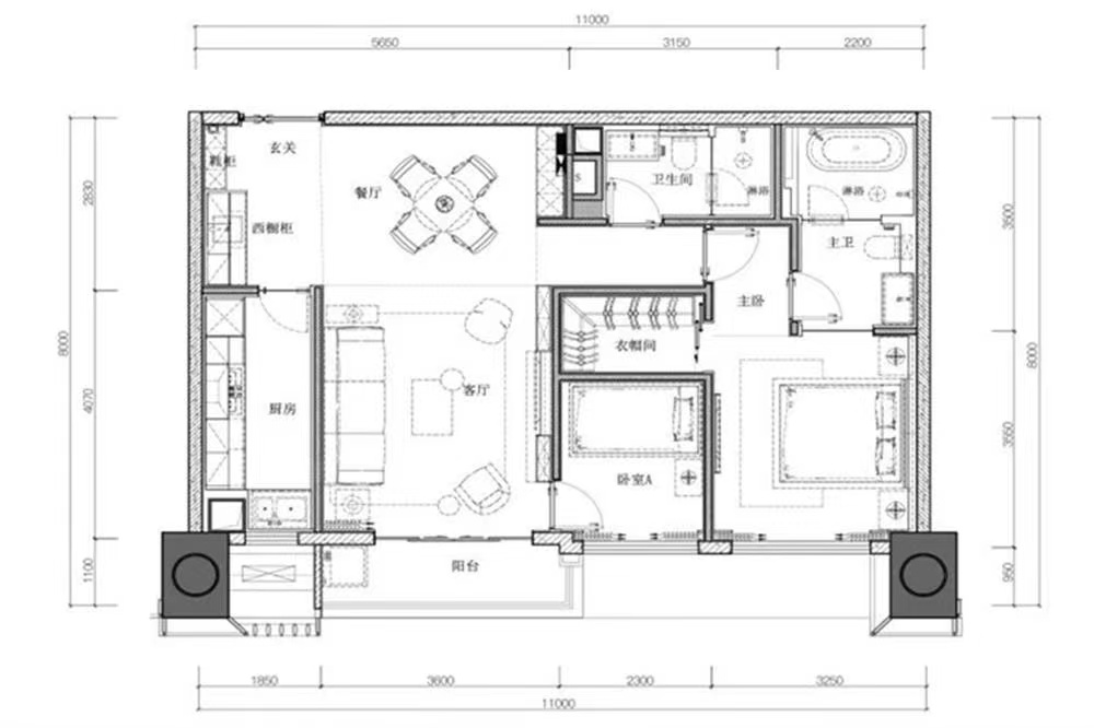
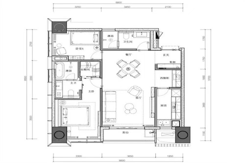
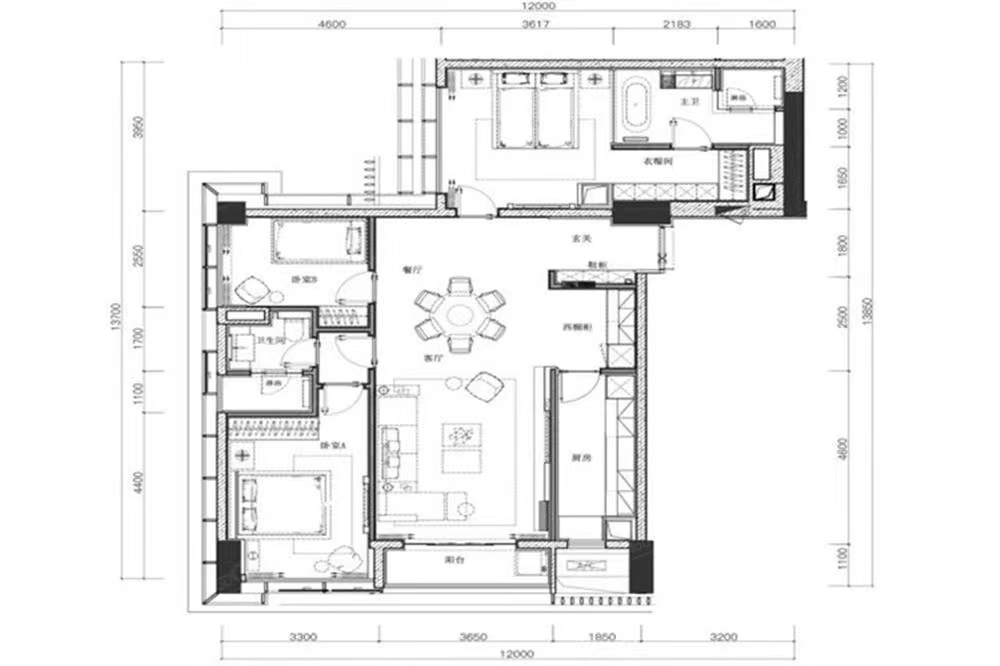
【面積】約90-160㎡(1-3房奢闊公寓)
【物業】深圳市華僑城物業服務有限公司(6.8元/平米)
【占地面積】約1.6萬㎡
【建筑面積】約16萬㎡(辦公約10.4萬㎡,商務公寓約4.2萬㎡,商業約1萬㎡)
【容積率】10
【綠化率】30%
【樓棟數】總共2棟,1棟7-43層為公寓,2棟7-44層為辦公,1-2樓為商業,3-5樓為創意辦公
...............................................................
公寓基本信息:
【建筑面積】約4.2萬㎡
【層數】43層
【套數】380套
【層高】7-36樓層高約3.2m,37-41層高約3.3m,42-43層高約3.6m
【梯戶比】7-36F7梯12戶,37-41F7梯8戶
【交樓標準】帶裝修
【產權年限】40年(2017年2月-2057年2月)
【是否帶陽臺】是
【是否通燃氣】是
【交樓時間】2020年12月31日前
...............................................................
項目價值點:
【門戶標桿】深圳北商務總部門戶資產,高品質商務標桿
【總部基地】2千億巨資規劃紅利,960萬恢弘體量再造城心,六大總部基地之一
【價格洼地】深港中軸發展核心,西九龍-福田CBD-深圳北經濟帶價格洼地
【瑧稀公寓】深圳北商務中心總部首個超大尺度高端公寓,瑧藏資產僅380席
【立體交通】4/5/6(在建)三地鐵匯聚北站瞬達全市;廣深港高鐵快速通達全國
【品牌開發】華僑城34載匠心,巨資打造北站超級總裁公寓
【精奢產品】國際一線品牌奢裝,彰顯不凡居住品質
【綜合配套】退臺式特色辦公、綠谷云街、活力商谷,一站式生活配套
【生態景觀】盡享9公里城市綠谷景觀軸,俯瞰紅木山、羊臺山生態景觀
【頂級配套】出門即達龍華四館,奢享約50萬㎡頂級商圈環繞
【私享會所】星級私享會所,無邊際泳池、健身SPA、書吧,奢享愜意棲居




























《龍華壹品》全新樓盤隆重推出!深圳符合住建部五月一日頒發《住宅項目規范》新規的第四代住宅要求的小高層帶電梯的豪宅!單價1 58萬元 平
深圳市龍華區龍華大道1號
龍華 |龍華大道1號龍華大道1號,震撼來襲項目規模:共9棟,926戶,生態品質大盤,占地面積約為3萬m2,建筑面積約為11萬m2,容積率2 5,綠
深圳市龍華區時尚中心---亞洲時尚中心
龍華最低門檻,輕松安家深圳,無需深戶不用社保,不占名額,私密資產,高品質大紅本住宅,享受落戶資格可上學。
深圳市龍華區觀湖街道環觀南路與大和路交匯處格瀾郡二期
九大投資價值【政商核芯】毗鄰龍華區政府,深圳北拓城市發展新名片,最后的財富增長爆發地!【標桿示范區】政府主導,龍華7大夜間經濟示范
深圳市龍華區地鐵四號線上塘站A出口
項目位于深圳市龍華新區,靠近深圳北站。配套較完善,區域未來規劃配套資源完善,路網體系較完善,緊鄰地鐵站點,8站即到福田**,龍華金茂
深圳市龍華區環觀南路與平大路交界處
建筑呈點狀布局,無遮擋視野。純住宅,無其他業態干擾,生活方式更純凈,營造臻稀無雙的圈層氛圍。建面約66-104㎡23層墅境臻品,引全城爭藏。
深圳市龍華區騰龍路與潔玉潔交匯處
交通:轉身即上梅觀高速,“一橫三縱”路網構建半小時中心生活圈;
深圳市龍華區龍瀾大道與大浪南路交匯處
龍華構建以大浪為核心的數字經濟先行區,打造5G·科技中心。